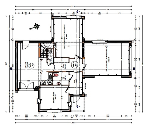
Etude technique, Morbihan

Nous demarrons l'étude technique pour un cabinet à Morbihan. La construction est prévue pour fin mars 2018.